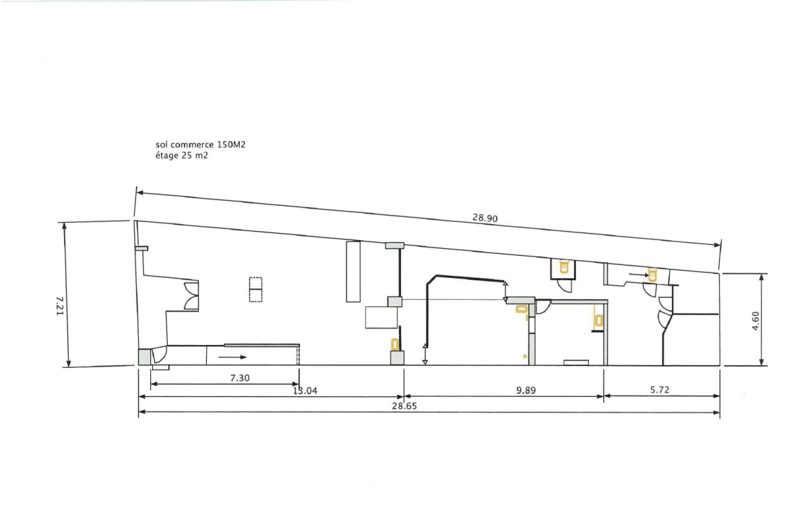
Belle visibilité pour ce grand local commercial d'environ 150 m² tout en rez-de-chaussée composé d'une grande boutique, pièces, réserve, 2 wc - A l'étage 2 pièces pour environ 25 m² - BAIL 3/6/9 - tous commerces sauf nuisance - Loyer : 1 200€ net - 2 mois de dépot de garanties 2400€ - Frais d'agenbce 1200€ ttc + frais de bail via notaire charge prendeur
Local commercial 5 pièce(s) 175 m²
Bilan énergétique
Diagnostics énergetiques- Surface 175 m²
- construit en 1900
- exposition Ouest
- 2 niveau(x)
- 1 étage(s)
- vue rue Toufaire
Financier
Informations financièresComposition
Composition de ce bienRez-de-chaussée
- COMMERCE m²
- couloir de ciculation m²
- Pièce m²
- Pièce m²
- Dégagement m²
- WC m²
- Dégagement m²
- WC m²
- vestiaire m²
- Pièce m²
Etage 1
- PALIER m²
- Pièce m²
- Réserve m²
Les informations recueillies sur ce formulaire sont enregistrées dans un fichier informatisé par La Boite Immo agissant comme Sous-traitant du traitement pour la gestion de la clientèle/prospects de l'Agence / du Réseau qui reste Responsable du Traitement de vos Données personnelles.
La base légale du traitement repose sur l'intérêt légitime de l'Agence / du Réseau.
Elles sont conservées jusqu'à demande de suppression et sont destinées à l'Agence / au Réseau.
Conformément à la loi « informatique et libertés », vous disposez des droits d’accès, de rectification, d’effacement, d’opposition, de limitation et de portabilité de vos données. Vous pouvez retirer votre consentement à tout moment en contactant directement l’Agence / Le Réseau.
Consultez le site https://cnil.fr/fr pour plus d’informations sur vos droits.
Si vous estimez, après avoir contacté l'Agence / le Réseau, que vos droits « Informatique et Libertés » ne sont pas respectés, vous pouvez adresser une réclamation à la CNIL.
Nous vous informons de l’existence de la liste d'opposition au démarchage téléphonique « Bloctel », sur laquelle vous pouvez vous inscrire ici : https://www.bloctel.gouv.fr
Dans le cadre de la protection des Données personnelles, nous vous invitons à ne pas inscrire de Données sensibles dans le champ de saisie libre.
Ce site est protégé par reCAPTCHA, les Politiques de Confidentialité et les Conditions d'Utilisation de Google s'appliquent.
* HC : Hors Charges
* NAT : Non assujetti à TVA